




Development Land in Eakring Road for Sale - £160,000
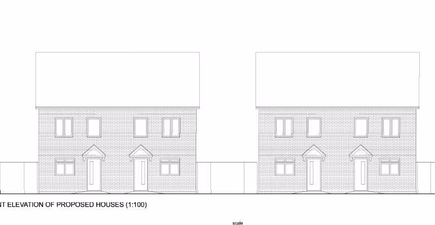
Description The site offers a shovel-ready residential development opportunity with full planning permission for the construction of four new dwellings, arranged as two pairs of semi-detach...
Development Land in Eakring Road for Sale - £160,000
Description
Description The site offers a shovel-ready residential development opportunity with full planning permission for the construction of four new dwellings, arranged as two pairs of semi-detach...
Contact Agent
Smart Picks — Professionals Relevant to This Land
Based on this property's key features, here are the specialists you may want to consult as part of your due diligence: land agents, rural solicitors, planning consultants and rics surveyors.

Land Agents
Essential for navigating the land market, finding buyers, and securing the best price.

Rural Solicitors
Significant investment (£160K+) requires legal expertise for conveyancing, title checks, and transaction security.

Planning Consultants
Planning-sensitive site needs expert guidance for applications and development strategy.

RICS Surveyors
Prime or productive land requires professional valuation to ensure fair market value.
Location
Eakring Road